設計案例:
某丙類廠房項目建筑面積大于25000㎡,需按規范要求在外墻或屋頂設置固定窗。
處理意見:
按意見在圖紙上明確標注固定窗位置及大小。
規范名稱及條文內容:
《建筑防煙排煙系統技術標準》GB 51251-2017
4.1.4 下列地上建筑或部位,當設置機械排煙系統時,尚應按本標準第4.4.14 條~第4.4.16 條的要求在外墻或屋頂設置固定窗:
1 任一層建筑面積大于2500m2 的丙類廠房(倉庫);
4.4.14 按本標準第4.1.4 條規定需要設置固定窗時,固定窗的布置應符合下列規定:
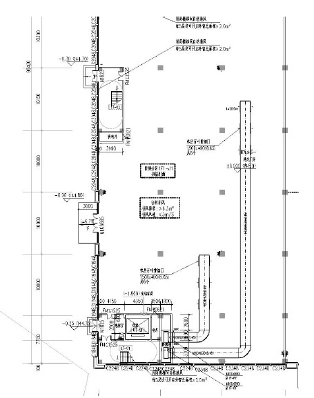
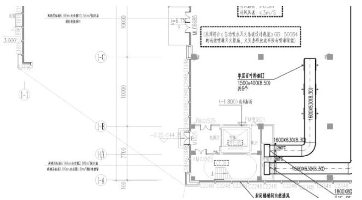
1 非頂層區域的固定窗應布置在每層的外墻上;
2 頂層區域的固定窗應布置在屋頂或頂層的外墻上,但未設置自動噴水滅火系統的以及采用鋼結構屋頂或預應力鋼筋混凝土屋面板的建筑應布置在屋頂。
4.4.15 固定窗的設置和有效面積應符合下列規定:
1 設置在頂層區域的固定窗,其總面積不應小于樓地面面積的2%。
2 設置在靠外墻且不位于頂層區域的固定窗,單個固定窗的面積不應小于1m2,且間距不宜大于20m,其下沿距室內地面的高度不宜小于層高的1/2。供消防救援人員進入的窗口面積不計入固定窗面積,但可組合布置。
3 設置在中庭區域的固定窗,其總面積不應小于中庭樓地面面積的5%。
4 固定玻璃窗應按可破拆的玻璃面積計算,帶有溫控功能的可開啟設施應按開啟時的水平投影面積計算。
4.4.16 固定窗宜按每個防煙分區在屋頂或建筑外墻上均勻布置且不應跨越防火分區。
解析:
4.1.4 在大型公共建筑(商業、展覽等)、工業廠房(倉庫)等建筑中,因為建筑的使用功能需求而存在大量的無窗房間。在近幾年的多起火災案例中反映出僅設置機械排煙系統不能滿足火災中排煙排熱的需求。為了在火災初期不影響機械排煙,又能在火災規模較大后及時地排出煙和熱,因此在設置機械排煙系統的無窗房間要求加設可破拆的固定窗。固定窗的設置既可為人員疏散提供安全環境,又可在排煙過程中導出熱量,防止建筑物在高溫下出現倒塌等惡劣情況,并為消防隊員撲救時提供較好的內攻條件。
此外,在一些工業建筑中,人員較少但可燃物多、火災熱釋放速率大,綜合考慮火災中的實際情況并經過實際調研后,本標準允許采用可熔材料制作的固定窗進行排煙。但應注意保證可熔材料在平時環境中不會熔化,且火災時熔化后熔滴物不會引燃其他可燃物。
但需要注意的是,在設計時,固定窗不能作為火災初期保證人員安全疏散的排煙窗。
4.4.14~4.4.17 這幾條對固定窗的設置位置、面積指標做了規定。固定窗的設置是為了在可燃物較多、預計火災功率較大的場所,彌補機械排煙的不足,以保證快速、有效且可持續地排出火場熱煙。因此只要有設置條件的外墻或屋頂都宜均勻布置固定窗。在不影響建筑使用功能的前提下,本標準對固定窗的面積指標做了相應的要求。
附圖:

收藏我們
在線留言
站點地圖
全國咨詢熱線 : 
